Satapatha Brahmana Part III (SBE41), Julius Eggeling tr. [1894], at sacred-texts.com
p. 419
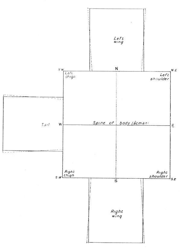
Click to enlargePLAN OF FIRE-ALTAR (AGNIKSHETRA)